Brf Parkgläntan

Projektfakta


  • Status Kommande
  • Antal bostäder 20
  • Boarea 116-128
  • Hustyp Radhus
  • Frånpris 116 kvm 3 295 000 kr
  • Frånpris 128 kvm 3 495 000 kr

  • Ort Malmö
  • Område Videdal
  • Säljstart Maj 2026
  • Beräknat tillträde Q4 2026

Beskrivning


I attraktiva och familjevänliga Husie, med närhet till grönområden, service och utmärkta kommunikationer, planerar Panghus ett exklusivt bostadsprojekt som sätter en ny standard för modernt radhusboende. Här skapas ett hem för dig som vill kombinera trygghet och lugn – med smidig närhet till Malmös centrala delar. Området präglas av en barnvänlig boendemiljö, direkt närhet till förskola och en stark känsla av gemenskap – perfekt för familjelivet.

Projektet omfattar stilrena och genomtänkta radhus om 116, 120 respektive 128 kvm, där modern arkitektur möter hög kvalitet, hållbarhet och smart funktionalitet. Med ett arkitektoniskt uttryck som både harmonierar med omgivningen och samtidigt sticker ut, skapar vi bostäder som inte bara är vackra att se på – utan fantastiska att leva i.
Husen genomsyras av ljus och rymd tack vare generösa stora fönsterpartier från danska Velfac och exklusiva trägolv som ger en varm och inbjudande känsla. Varje detalj är noga utvald med fokus på design, kvalitet och långsiktighet – hem som håller över tid.

Snickeribyggda stilrena kök, med optimala lösningar och vitvaror från exklusiva SMEG – en perfekt kombination av estetik och funktion. Badrummen håller genomgående högsta klass, med ett badrum på varje våningsplan. Entréplan erbjuder tvättmaskin och torktumlare, medan badrummet på övre plan är utrustat med ett härligt badkar. Grå klinker, vita kaklade väggar med en modern, industriell känsla – skapar tidlös elegans.

Båda husmodellerna erbjuder öppna och luftiga planlösningar, med fyra sovrum och generösa allrum på båda våningsplanen – idealiskt för både vardagsliv och sociala tillställningar. Det som är standard hos Panghus är ofta exklusiva tillval hos andra bostadsutvecklare.

Husie erbjuder det bästa av två världar: ett lugnt och tryggt bostadsområde med närhet till natur, skolor och service – samtidigt som du når Malmös citypuls på bara några minuter. Här bor du bekvämt, modernt och familjevänligt, i ett område där livskvalitet står i fokus.

Tillträde planeras från kvartal 4, 2026.

Detta är nyproduktion i en klass för sig – där arkitektur, omtanke och kvalitet genomsyrar varje kvadratmeter.

Anmäl ditt intresse redan idag för att löpande ta del av information, uppdateringar och få förtur till den exklusiva VIP-säljstarten, planerad till april 2026. Bostäderna fördelas strikt efter datum för intresseanmälan och antalet bostäder är begränsat.

Hustyp 1: CM02- 116 kvm

Planlösning

Hustyp 2: CM02 - 120 kvm

Planlösning
Badrum Husie

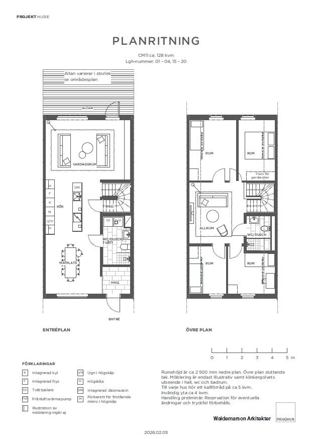
Hustyp 3: CM11 - 128 kvm

Planlösning

Hög standard som standard – Detaljerna som gör skillnad


Bostäder i projektet håller genomgående mycket hög kvalitet och standard med bland annat:

  • Snickeribyggt kök med vitvaror från SMEG (samtliga vitvaror i huset är från SMEG)
  • Två badrum – ett på entréplan (där även husets tvättmaskin och torktumlare återfinns) och ett på övre plan
  • Industriell touch i materialvalen gällande badrummen – grått klinker, vitt kakel
  • Golv i massivträ med breda tiljor
  • Stora fönsterpartier från danska Velfac
  • Solceller ingår – utan extra kostnad

Det som ofta är dyra tillval hos andra är standard här. Detta är nyproduktion där design, hållbarhet och komfort möts på riktigt

Att bo i Videdal


Lummiga och natursköna Videdal är beläget i villastadsdelen Husie med nära avstånd från centrala Malmö. Perfekt för dig som uppskattar en mysig och familjär miljö i grönområde kombinera med närhet till stadspuls, restauranger och kulturliv.

Videdal har blivit ett populärt område att bosätta sig i för de som uppskattar att bo lite utanför stan men samtidigt önskar närhet till storstad. Ett delområde i stadsdelen Husie i Malmö och ligger mellan Inre Ringvägen och Videdalsvägen, söder om Sallerup. Med smidiga kommunikationsalternativ hittar du stadspuls några minuter samtidigt som du bor i ett idylliskt villaområde med hus och trädgård. Att cykla går lika bra som att ta bilen och pendlar du till Köpenhamn är Videdal en perfekt stadsdel att bosätta sig i bara några minuter bort från ringvägen. I Videdal finns all närservice du kan önska dig; skolor, förskolor, vårdcentral och livsmedelsaffärer. Med direkt närhet till parker och lekplats får du en fantastisk omgivningsmiljö, inte minst för dig som jobbar i centrala Malmö, ett skönt avbrott helt enkelt. Videdal består till stor del av villabebyggelser från 1960-talet och domineras av barnfamiljer och något äldre hushåll. Friluftslivs hittar du ett stenkast bort på Friluftsfrämjandet Husie, perfekt för dig som uppskattar natur och skog. För barnen finns barnverksamheten SkogMulle som erbjuder både stora och små friluftsäventyr, en perfekt nöje för hela familjen.

Bostadsväljare


Områdeskarta


Nedan finner ni en områdeskarta där projektet är markerat.

Planering


  • Planering

    Planering


    I alla bostadsprojekt är detta ett omfattande arbete med en rad olika aktörer som så arkitekter, konstruktörer, ekonomer, byggherrar stadsbyggnadskontor m.fl.
  • Lansering

    Lansering


    Nu är projektet publikt, det går att anmäla intresse för projektet samt få information om hur försäljningen kommer att gå till. Vi uppdaterar sedan löpande informationen om projektet fram till säljstarten via vår hemsida, nyhetsbrev och våra sociala kanaler.
  • Säljstart

    Säljstart


    Från och med denna dag går det att köpa bostäderna i projektet.
  • Förhandsavtal

    Förhandsavtal


    Ett juridiskt bindande avtal som tecknas mellan föreningen och köparen.
  • Byggstart

    Byggstart


    När alla tillstånd är på plats påbörjas produktionen av bostäderna.
  • Upplåtelseavtal

    Upplåtelseavtal


    När föreningen har erhållit sin ekonomiska plan upplåts lägenheterna till de personer som har tecknat förhandsavtal.
  • Köpargenomgång

    Köpargenomgång


    Innan slutbetalningen skall göras kommer ni att bli inbjuda till en genomgång med byggherren där ni får möjlighet att gå igenom er bostad.
  • Slutbetalning

    Slutbetalning


    Inför tillträdet skall den slutgiltiga köpeskillingen erläggas.
  • Tillträde

    Tillträde


    Grattis, du får nu flytta in i din nya bostad!
  • Garantibesiktning

    Garantibesiktning


    2 år efter tillträde skall det anordnas en kontrollbesiktning där eventuella fel som omfattas av garantin åtgärdas.

Anmäl ditt intresse


Lämna dina kontaktuppgifter för mer information.

Jag är intresserad av:

Tack för visat intresse för Brf Parkgläntan


Du kommer inom kort att få ett mail till angiven e-postadress med all aktuell information om projektet och dess status. Tveka inte att höra av dig till ansvarig mäklare om du har vidare frågor.

Projektteam


Card image cap
Ansvarig mäklare

Conny Knutsson

Franchisetagare / Fastighetsmäklare

0706-98 66 34
conny.knutsson@bjurfors.se

Projektfakta: Brf Parkgläntan


Grundfakta

  • Status Kommande
  • Antal bostäder 20
  • Boarea 116 - 128
  • Rum 5 - 5

Adress

Föreningsinformation

  • Boendeform Radhus
  • Upplåtelseform Bostadsrätt

Anmäl ditt intresse


Lämna dina kontaktuppgifter för mer information.

Jag är intresserad av:

Tack för visat intresse


Du kommer inom kort att få ett mail till angiven e-postadress med all aktuell information om projektet och dess status. Tveka inte att höra av dig till ansvarig mäklare om du har vidare frågor.

Ett steg upp.


Bjurfors är Sveriges största privatägda fastighetsmäklare med omkring 600 medarbetare på 92 kontor runt om i Sverige och vid Medelhavet. Mäklartjänsterna omfattar såväl bostadsrätter, villor, tomter och fritidshus som nyproduktion, tjänster inom förmedling av kommersiella fastigheter och ombildningar till bostadsrätter. Genom en kvalitetssäkrad arbetsmetod och branschens mest dedikerade mäklare har Bjurfors under mer än 50 års tid tagit kunderna till lyckade bostadsaffärer. Under 2021 förmedlade Bjurfors 17 000 bostäder till ett totalt värde om 70 miljarder kronor. Den samlade omsättningen uppgick till 1 miljard kronor.

Du använder en gammal webbläsare

Gamla webbläsare har bara delvis stöd för ny teknik och ger inte webbplatsen en ärlig chans att leva upp till sin fulla potential. Du kan enkelt ladda ner en annan webbläsare som fungerar bättre. Här är ett axplock moderna webbläsare som fungerar bra!

Uppdatera min webbläsare

Jag vill fortsätta ändå